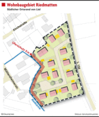
Bau-Ärger
Beispiel Liel: Was passiert, wenn sich Bauherren nicht an die Vorgaben eines Bebauungsplans halten?
Verwaltung
Die neue rechte Hand des Bürgermeisters: Ex-Zeitsoldatin Steffi Böttcher arbeitet jetzt im Schliengener Rathaus
Leserbrief: "Wieso nicht Tatkraft in Landeskirche einbringen"
Windenergie
Die Politik der großen Koalition bremst in Schliengen die Windkraft auf dem Blauen aus
Freikirche
Die Schliengener Freikirche "Kraftwerk" sitzt zwischen Gemeinderat und Landratsamt in der Zwickmühle
Bezirksliga
SV Blau-Weiss Murg rettet spät einen Punkt gegen SG Weilheim-Gurtweil
Nehmen Sie Kontakt auf mit unserer Lokalredaktion.
5° C
Warnung vor Frost
Interview
Mitstreiter gesucht – in Schliengen will Reto Sahner eine Jugendgruppe des DRK aufbauen
Finanzen
Gesetz könnte Umland bei Beteiligung an Müllheimer Sanierungskosten entlasten – aber wohl nur begrenzt
BZ-Serie
Jessica Friese aus Schliengen ist fertige Pflegefachkraft – mit Begeisterung und einem 1,0-Abschluss
Tierschutz
Katzenschutzverordnungen: Erste Erfolge beim Kampf gegen streunende Katzen im Kreis Lörrach
Bezirksliga
FC Schönau untermauert Heimnimbus gegen den SV Waldhaus
Finanzen
In Schliengen sollen bald die Pflöcke eingeschlagen werden für den Haushalt 2026
Musik-Kunst
Mark Knopflers Gitarre wird bei Thomas Steyer aus Liel zum Star eines überdimensionalen Gemäldes
Platzsuche
Nutzung für Mannhardt-Haus und Platz für Musikschule gesucht – angedachte Lösung ist zu teuer
Katholische Kirche
Das ist der neue Pfarreirat der Kirchengemeinde Breisgau-Markgräflerland
Polizei
Hauptkommissar Ralf Huck übernimmt Polizeiposten in Kandern und startet Umzug nach Bad Bellingen